Building Agency
Cran-Lea, Longsplatt
3
1
Offered chain free with a legal pack in the place to ensure a quick sale, this lovely bungalow in the heart of the picturesque countryside, just a short distance from the historic city of Bath, offers an exceptional opportunity to create your dream home.
With a generous plot of land and breathtaking views, the property is full of potential, waiting for someone with vision to bring it to life. While the bungalow does require some work, it presents an excellent foundation for renovation and modernisation, with ample space to extend and reimagine the layout.
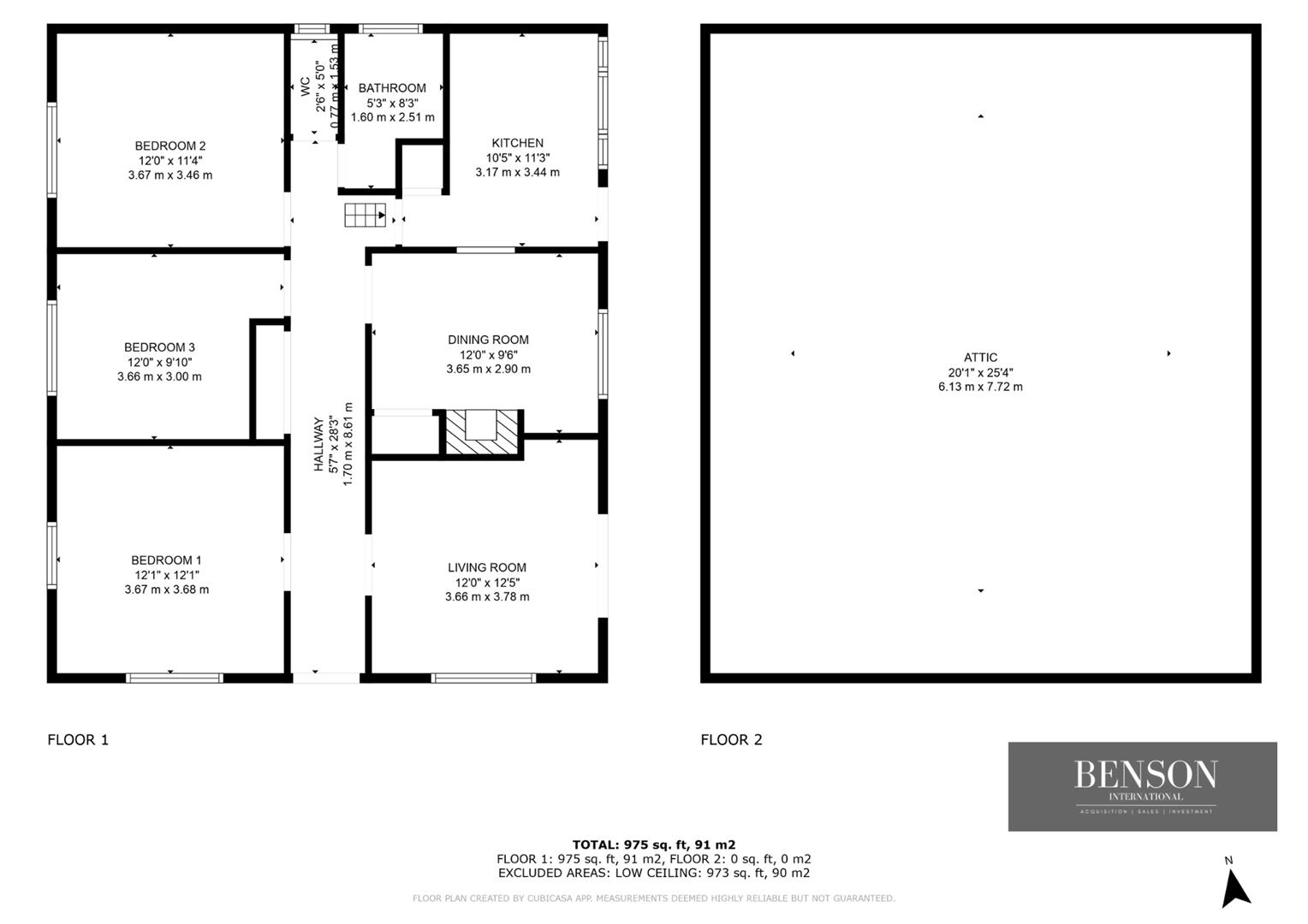
The current layout includes three well-proportioned bedrooms, cosy living spaces, and the potential for a variety of customisations.
With the right touches, this bungalow could be transformed into a beautiful, contemporary haven.
The surrounding gardens provide the perfect setting for outdoor entertaining or relaxing, and there’s plenty of room to create additional living areas or even a private garden retreat.
Whether you’re looking to expand the living space, add a conservatory, or craft your own countryside escape, this property offers the perfect canvas to do so.
Ideally located for easy access to the vibrant city of Bath, with its renowned cultural scene, historic architecture, and excellent transport links, this property offers the best of both worlds—peaceful rural living with the conveniences of city life just a short drive away.
£500,000
No items found.















